We offer referral compensation for signed projects!
We offer referral compensation for signed projects!

We are a design/build company.
We have over 35 years of experience in architectural and structural design/detailing, and residential construction.
Our services cover all aspects of the project; from initial design concepts to fabrication of components to a completely constructed modpod. Our services are cohesive throughout the entire process. This enables us to apply design creativity to each projec

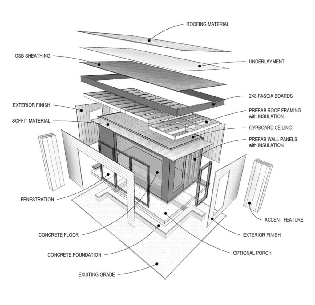
Exploded view of the building components in a typical modpod project.
We build our structures to current residential construction standards using premium grade materials.

Concrete footings and floor slab provide a stable and significant foundation to build.
We develop carefully detailed and accurate drawings to fabricate wall and roof panels off-site. This minimizes dust and noise at the project site while expediting the build process.

Wall panels are quickly erected and connected. Fabricating panels in a controlled environment means they are accurate in size and consistent in shape.

An entire structure can be assembled in just a few days.

Insulated walls and ceilings create an effective barrier for a quiet and comfortable space all year long.
Foundation detailing with rebar and Simpson holdowns for superior strength.